
施工中电缆桥架安装施工要求及规范怎么样?
1. 一般规定
1.1. 本章适用于电压10KV及以下新建、扩建一般工业与民用建筑的电缆、桥梁安装及桥内电缆敷设。
作为布线工程的配套工程,电缆桥架目前还没有具体的规范指导。 各个厂家的规格和方案缺乏通用性。 因此,设计选型过程中应根据各弱电系统中电缆的类型和数量,合理选择适用的电缆。 桥。
(1)确定方向:根据建筑平面图,结合空调管道、电气管道的设置、维护的方便程度以及电缆走线的密度,确定电缆桥架的最佳走线。 室内应尽可能沿建筑物的墙、柱、梁、地板架设。 例如,采用综合管廊架设时,应平行架设在管道的一侧或上方,并考虑引下线和支线,尽量避免交叉。 如果没有其他管架可以借用,则需要自己设置(支撑)立柱。
(2)载荷计算:计算电缆桥架主线纵截面上单位长度的电缆重量。
(3)确定电缆桥架的宽度:根据数量确定电缆桥架的型号和规格、支撑臂的长度、支柱的长度和间距、桥架的宽度和层数电缆敷设数量、电缆直径和电缆间距。
(4)确定安装方式:根据场所设置条件确定桥梁的固定方式,可选择悬挂式、立式、侧墙式或混合式。 连接器和紧固件通常成套供应。 另外,根据桥梁结构选择相应的盖板。
(5)绘制电缆桥架的平面图、剖面图以及局部零件的空间图,并列出材料。
(6)如与动力电缆桥架配套使用,动力电缆和弱电电缆应分别放置在一侧,中间用隔板隔开。
(7)弱电电缆与其他低压电缆在桥梁中使用时,应严格选用外屏蔽层弱电系统的弱电电缆,避免相互干扰。
1.2. 电缆桥架的安装和桥内电缆的敷设应按照批准的设计文件进行。
1.3. 电缆桥架是一种具有连续性的刚性结构系统,用于敷设电缆。 它由支架、吊架和直线段和弯曲非直线段支撑的托盘(槽)或梯架组成。 见下文:

1.4. 金属走线架及其支架以及进出金属电缆导管必须可靠接地(PE)或接零(PEN),并应符合下列规定:
1.4.1. 金属走线架和支架总长度应不少于2处与地(PE)或零(PEN)干线连接;
1.4.2. 非镀锌电缆桥架之间的连接板两端采用铜芯接地线作为跳线。 接地线允许的最小截面积不小于4mm2;
1.4.3. 镀锌电缆桥架之间的连接板两端不与地线连接,但连接板两端有不少于两个带有锁紧螺母或锁紧垫圈的连接固定螺栓。
1.4.5。 电缆敷设时严禁出现扭曲、铠装破碎、护套破裂、表面严重划伤等缺陷。
1.4.6。 电缆桥架处如有防火要求,应采取防火隔离措施。
2、施工准备
2.1. 技术准备:
2.1.1. 按照批准的施工组织设计(施工方案)进行技术和安全交底。
2.1.2. 施工执行流程标准、图集、规范齐全。
2.1.3. 敷设电缆桥架前,应检查电缆桥架是否有与其他设备、管道交叉或重叠而无法施工的地方。 施工前应与各工种、监理或施工单位、设计单位进行协商,并保存记录。 确保施工顺利进行。
2.1.4. 电缆牵引力应根据施工图纸或施工所用电缆进行计算。
1、电缆桥架的规格型号必须符合设计要求,配件必须齐全; 桥梁用各类钢材、附件、配件和紧固件均应采用镀锌标准件。
2、各种规格电缆桥架的直段、弯管、桥梁附件及支架、吊柱、型钢必须有产品合格证。 桥的内外应光滑平整,无棱线,不得有扭曲、翘曲。
3、桥梁的订购或生产应按设计要求进行。 不能有任何错误,应反复检查,避免浪费。
4、安装桥架时,选择需要屏蔽电气干扰的电缆回路。 在有腐蚀或易燃粉尘的场所,应使用无盖、无孔的封闭托盘。 需要因地制宜时,应采用拼装托盘或带孔和梯子的托盘。 架子; 在容易积聚灰尘的环境或室外场所以及其他需要遮盖的区域,应设置遮盖物。 当低压电力电缆与控制电缆共用同一托盘或梯子时,应使用中间有隔板的托盘或梯子; 托盘、梯架的分支、上下引线处应有适当的弯折; 因空间条件不便安装弯头或有特殊要求时,可采用软连接板、铰接板; 伸缩缝应设有伸缩板; 连接两段不同宽度或高度的托盘和梯子可配备加宽或加高板。 但施工时,支吊架和桥梁的选择应根据设计或工程布置条件而定。
5、托盘、梯架的宽度和高度应按下列要求选择:
(1)桥内电缆填充率,动力电缆不宜大于40%,控制电缆不宜大于50%。 应留有一定的备用空间,以便日后增加电缆;
(2)选用的托盘和桥架规格的承载能力应符合规定。 工作均布载荷不应大于所选托盘和梯架载荷级别的额定均布载荷;
(3)均匀工作载荷下的相对挠度不应大于1/200。
托盘、梯架的直段可按单件标准长度选择。 单件标准长度一般为2、3、4、6m。 托盘、梯架常用规格及宽度、高度尺寸见表2.4-1
注:符号△表示通用规格
各种弯管及附件的规格应适合工程布置条件,并与托盘、梯架相配套。
支吊架的规格应根据托盘、梯架规格、层数、跨度等条件选择,并应满足载荷要求。
钢桥表面处理方法应根据工程环境条件、重要性、耐久性和技术经济性等因素选择。 一般情况下,宜按表2.4-2选择适合工程环境条件的防腐处理方法。 表中“T”型防腐方法用于镀锌镍合金、高净化等防腐处理的桥梁时,应按规定进行试验验证,并应有明确的技术依据。质量指标及检测方法。
注:符号“○”表示推荐防腐类别
6、桥梁外观检查
桥梁产品包装箱内应有装箱清单、产品合格证和出厂检验报告。 托盘和梯架的厚度应符合表2.6的规定。 表面防腐层材质应符合国家相关标准。

热镀锌托盘、桥架的涂层表面应均匀,无毛刺、过烧、挂尘、划伤、局部脱锌(直径大于2mm)等缺陷,无影响安装的锌瘤。 螺纹涂层应光滑,螺栓连接应可拧紧。
电镀锌层表面应光滑、均匀、致密。 不得有起皮、气泡、斑点、局部脱镀、划伤等缺陷。
喷涂应平整、光滑、均匀、无剥落、无气泡、砂眼。
桥梁焊缝表面应均匀,不得有缺焊、裂纹、夹渣、烧穿、弧坑等缺陷。
当螺钉直径不大于M16时,桥梁螺栓孔直径可比螺钉直径大2mm。
螺栓连接孔孔距允许偏差:同组相邻两孔间距±0.7mm,同组任意两孔间距±1mm; 相邻两组端孔间距为±1.2mm。
7、膨胀螺栓:应按许用拉力、剪力选用; 按计划验收即可,螺纹应完好。
8、电缆应有合格证和“CCC”认证标志,以及“CCC”认证证书复印件; 每根电缆上均应标明规格、型号、电压等级、长度和生产日期。 电缆应完好无损。
9、电缆外观完好,铠装无锈迹、机械操作、皱纹、扭曲。 油浸电缆应密封良好,不得漏油、渗水。 橡套、塑料电缆的外护套和绝缘层无老化、裂纹。 电缆末端密封良好。
10、其他辅助材料; 电缆标牌、油漆、汽油、铅封、硬脂酸白布胶带、橡胶包布、黑包布、塑料绝缘胶带等均应符合要求。
3、施工技术
3.1. 电缆桥架安装施工技术
3.1.1. 电缆桥架安装流程:
定位布置→预埋铁件或膨胀螺栓→支架、吊车、支架安装→桥梁安装→保护接地安装
3.1.2. 根据施工图确定起点至终点位置。 按照图纸上标记的方向找到水平、垂直和弯曲的连接。 用粉色线袋或沿桥梁方向画线,标记墙壁、天花板、地板、梁、板、柱等。到处打或画线,间隔均匀地画出支撑、吊架、斗拱的位置。
3.1.3. 预埋铁件或膨胀螺栓
(1)自行加工预埋铁件不应小于120mm×80mm×6mm,锚固圆钢直径不应小于10mm。
(2)紧密配合土建结构施工,将预埋铁件紧贴模板放置,将锚固圆钢通过绑扎或焊接的方式固定在结构内的钢筋上; 混凝土模板拆除后,预埋铁件的平整表面裸露,在其上焊接支架、吊架或支架进行固定。
(3)根据支架承受的载荷,选择相应的膨胀螺栓和钻头; 螺栓埋设后,可用螺母和相应的垫圈将支架或吊架直接固定在金属膨胀螺栓上。
3.2. 桥梁安装
1、直线型钢制电缆桥架长度超过30m,铝合金或玻璃钢电缆桥架长度超过15m。 应安装伸缩缝。 补偿装置应跨过伸缩缝安装。 可以使用带有伸缩缝的桥梁。
2、桥架与支架之间的螺栓、桥架连接板上的螺栓均已拧紧。 螺母位于桥的外侧。 铝合金桥架与钢支架固定时,有相互绝缘、防止电偶腐蚀的措施。 一般可采用石棉垫。
3、敷设在竖井内和跨越不同防火分区的电缆桥架应按设计要求定位,并有防火隔离措施。 敷设在电气竖井内的电缆桥架可用角钢固定,见图3.1.8。

4、电缆桥架穿越防火墙和防火楼板时,应采取防火隔离措施,防止火灾沿线蔓延; 防火隔离墙、防火隔离板应与土建施工配合预留开口,开口处应预埋护边角钢。 施工时根据层数和电缆敷设情况,采用L50×50×5角钢作为固定框架,固定柜与护边角钢焊接。 也可以先制作框架,然后在土建施工中砌筑或混凝土浇筑时安装。 在墙壁和木板上。
3.3 电桥接地
当设计允许使用桥接系统形成接地干线环路时,应满足以下要求:
1、金属走线槽进出的金属走线槽及其支架必须可靠接地(PE)或接地(PEN),并符合以下规范:
(1)金属桥架及其支架全长应不少于2处与地(PE)或零(PEN)干线连接,使整个桥架成为电气通路。
(2)非镀锌电缆桥架之间的连接两端均采用铜芯接地线连接,接地线的最小允许截面积不小于4mm2。
(3)镀锌电缆桥架之间的连接板两端无需连接地线,但连接板两端应有不少于两个带锁紧螺母或锁紧垫圈的连接固定螺栓。
2、面板与梯架端部的连接电阻不应大于0.00033Ω,并用等电位连接测试仪(导通表)或微欧表进行测试。 测试应在连接点两侧进行,测量桥的全长。两端连接电阻不应大于0.5Ω或由设计确定,否则应加接地点符合要求。 接地孔应无涂层,螺栓与涂层接触一侧的平垫应使用专用的带爪接地垫圈。
3、膨胀节或软连接必须采用编织铜线连接。 沿桥全长增设接地干线时,各托盘和梯架(包括非直线段)应在小点处与接地干线可靠连接; 接地件连接处应安装弹簧垫圈,防止松动。
4、支吊架安装
(1)支架、吊架所用钢材应平直,无明显扭曲。 切割后长度偏差应在3mm以内,切口处不应有卷边、毛刺;
(2)钢支架、吊架应焊接牢固,无明显变形。 焊接前,支架及厚度超过4mm的铁件应进行坡口处理。 焊缝应均匀、平坦。 焊缝长度应符合要求,不得出现裂纹和咬边。 、气孔、凹痕、缺焊等缺陷;
(3)支架、吊架应安装牢固,保证水平、垂直。 在有坡度的建筑物上安装支架、吊架时,应与建筑物的坡度、角度一致;
(4)支架、吊架的规格一般不应小于扁钢30mm×3mm; 角钢25mm×25mm×3mm;
(5)严禁使用电焊切割钢结构或轻钢龙骨的任何部位;
(6)万能吊具应采用定型产品,并应有独立的吊装夹具或支撑系统。
(7)。 固定支点之间的距离一般不应大于1.5~2m。 出入口接线盒、箱、柜、拐角、转弯及变形缝两端及T形缝三端500mm范围内应设置固定支撑点。
(8)严禁使用木砖固定支架、吊架。
5、桥梁安装
(1)电缆桥架水平敷设时,支撑跨度一般为1.5~3m。 电缆桥架垂直敷设时,固定点之间的距离不应大于2m。 当桥梁弯道的弯曲半径不大于300mm时,应在距弯曲段与直线段交界处300~600mm的直线段一侧设置支撑或吊架。 当弯曲半径大于300mm时,应在弯曲中间加支撑或吊架。 支吊架、桥架的安装必须考虑电缆敷设的弯曲半径,满足规范中的最小弯曲半径。 见表3.1.5。

注:为电缆外径
(2)门型角钢支架安装:梯形桥沿墙体垂直敷设。 可采用门形角钢支架。 支架的固定应尽可能结合土建施工进行预埋。 如图3.1.5(2-1)所示,土建施工时也可预埋开角螺栓,支架可用如图3.1.5(2-1)所示的开角螺栓固定。 也可采用膨胀螺栓进行固定。
图3.1.5.(2-1)角钢支架预埋安装



图3.1.5.(2-2)预埋地脚螺栓在钢支架上的安装
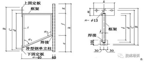
(3)梯式角钢支架安装:桥梁沿墙或柱水平安装时,支撑墙需安装在异形钢柱上,柱宜安装在梯式角钢支架上。角钢支架,使墙上的立柱和桥固定在支架上。 (或牛腿)在同一条直线上。 制作见图及表3.1.5 (3) 底座框架与门式框架焊接时,焊接角高为5mm。

表3.1.5(3)梯子角钢支架生产尺寸表(mm)
(4)电缆桥立柱侧墙安装:立柱是直接支撑支撑臂的构件,分为工字钢槽钢、角钢、异型钢立柱; 立柱可以安装在墙上、立柱上,或者悬挂在安装在梁板上。 铁件可预埋于混凝土中; 预制块可以用砖石建造; 也可采用膨胀螺栓,但必须用于混凝土强度为C20或砖强度为MU10及以上的砖砌体。 方法参见3.1.5(4a、b、c、d、e、f)。





(5)电缆桥架宜敷设在易燃易爆气体管道、热力管道下方。 当设计无要求时,距管道的最小净距应符合3.1.5(5)的规定。
表示3.1.5(5)与管道之间的最小净距离

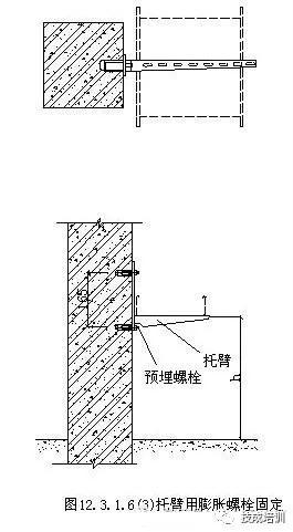
6、支撑臂安装
支撑臂是直接支撑托盘和梯架的刚性部件,单独固定。 支撑臂采用螺栓固定,可采用预埋螺栓,也可采用膨胀螺栓,也可采用夹紧方式,如图3.1.6(1)、(2)、(3)、(4 ),(5)。





七、电缆桥架安装要求
(1)槽式大跨度电缆桥架从室外进入建筑物时,桥架向外坡度不应小于1/100。
(2)电缆桥架与电气设备相交时,其净距不应小于0.5m。
(3)两组电缆桥架在同一高度平行敷设时,其间的净距离不应小于0.6m。
(4)在平行图上画出桥梁的路线,标明桥梁起点、终点、转折点、分支点、吊装点的坐标或定位尺寸和高程。 如果能画出桥梁敷设的轴向侧视图,那么材料统计就会更加准确。
直线段:标明总长度、桥梁层数、标高、型号、规格。 转向点和分支点:注明所用转向转接板的型号和规格。 抬升剖面:表示标高变化,也可以用局部大比例尺图或剖面图来表示。
(5)桥梁支撑点,如立柱、肘板或非标支撑,其间距、安装方式、型号规格、框架标高可协商一致在平面上列出,也可采用分段标注不同的横截面。 单线图或大样本图表示。
(6)电缆引下点位置及引下方法。 一般来说,大量电缆引下可采用垂直弯板、垂直引入架,少量电缆引下可采用导板或导管。 只需指明引导方法即可。
(7)电缆桥架距地面应大于2.2米。 桥顶与天花板或其他障碍物的距离不应小于0.3米。 桥梁宽度不应小于0.1米。 桥内断面填充率不宜超过50%。
(8)电缆在电缆桥架内垂直敷设时,电缆上端应每隔1.5米固定在桥架支架上。 水平敷设时,电缆应在首端、末端、匝数处固定,间隔3~5米处固定。
(9)安装在吊顶时,线槽盖的开口面应保持80毫米的垂直间隙,线槽的截面利用率不应超过50%。
(10)电缆槽内敷设的电缆无需绑扎。 线槽内的电缆应平直,尽量不要交叉。 电缆不应溢出电缆槽。 电缆不应溢出电缆槽。 、角部应绑扎固定。 垂直线槽敷设的电缆应每隔1.5米固定在电缆支架上。
(11)在水平、垂直桥架和垂直线槽内敷设电线时,应将电缆绑扎。 4对电缆以24根为捆扎,25对及以上主干电缆、光缆及其他信号电缆应根据电缆类型、电缆直径、电缆芯数进行捆扎。 绑扎间距不应大于1.5米,扣间距要均匀、松紧适度。
(12)桥梁水平敷设时,支撑间距一般为1.5~3m。 桥梁垂直敷设时,固定在建筑结构上的间距宜小于2m。
8、电缆桥架类型及品种的选择及敷设规范
电缆桥架类型及品种的选择
1、当电缆网络需要屏蔽电气干扰或有防护不受外界影响的要求时(如有腐蚀性液体、可燃性粉尘等的环境),(FB)型槽式复合防腐屏蔽电缆桥架(带封面)应选)
2、在强腐蚀环境下,应采用(F)型复合环氧树脂防腐阻燃电缆桥架。 支撑臂和支架也应采用相同的材料,以增加电缆桥架和附件的使用寿命。 在容易积尘并需要遮盖的环境或室外场所应安装罩盖。
3、除上述情况外,还可根据现场环境和技术要求选用托盘式、槽式、梯式、玻璃防腐阻燃电缆桥架或普通钢型电缆桥架。 在容易积尘并需要遮盖的环境或室外场所应安装罩盖。
4、穿越公共通道或室外路段时,该路段应在最底层台阶底部加垫板或使用托盘。 当大跨度跨越公共通道时,可根据用户要求增加桥梁的承载能力或选用行车架。
5、大跨度(>3m)宜采用组合桥(FB)。
6、复合环氧树指桥(F)宜在室外使用。
电缆桥架规格选择
1、复合环氧树脂电缆桥架的宽度和高度应按下表选择,并应符合电缆的真实带电率不超过相关标准规范的规定值。 对于电力电缆,可以是40-50%,对于控制电缆,可以是50-70%。 另外,还需要留出10-25%的余量用于程序开发。
2、各种弯道及附件的规格应符合工程布置条件,并与桥架相匹配。
3、支吊架规格的选择应根据桥梁规格、层数、跨度等条件而定。 并应满足负载要求。
4、桥梁截面积的选择,见表。 桥架上电缆网络中任意线路的最大自动过流保护的最大额定电流值或整定值(A)。 桥梁截面最小允许值(mm2) 0-60 12961-100 258101-200 452201-00 968
电缆桥架支架和吊架的配置
1、室内支撑、悬挂的短跨度一般为1.5-3m。 室外柱的中跨一般为6m。
2、非线性断面支吊架的配置遵循以下原则。 当桥梁宽度为300mm时,除满足下列条件外,还应在非线性断面中部增设支吊架。
3、设置多层拉挤玻璃钢电缆桥架时,层间中心距为200、250、300、350mm。
4、桥梁(金属桥梁)直线段每隔50m应留20-30mm的伸缩缝。
防火:桥梁上需要防火的部分必须由钢材或不燃或阻燃材料制成。
拉挤玻璃钢电缆桥架的接地
1、桥系统应有可靠的电气连接和接地(仅适用于金属桥)。
2、允许采用桥接系统构成接地干线回路时,应满足下列要求。 电桥两端之间的连接电阻不应大于0.00033欧姆,接地孔应无绝缘涂层。 在1KV及以下中性点直接接地的系统中,用电设备的地与系统中性点地相连。 当安装机械式电源切断装置时,桥纵向的金属截面积不应小于规定值。
3、沿桥全长增设接地干线时,各桥段(包括非直线段)至少应有一点与接地干线可靠连接。
4、对于有振动的场所,应在接地部分的连接处安装弹簧圈。
桥梁系统设计内容
桥梁系统的工程设计应与土木工程、技术及相关学科密切配合,确定最佳布局。 设计内容可能包括:
1.桥梁系统的相关剖面图。
2.桥梁系统平面图。
3、桥梁系统所需直段、弯管、支吊架的规格和数量的详细清单,以及必要的说明。
4、有特殊要求的非标件的技术说明或示意图。
安装:
电缆桥架的安装可参考中国建筑标准设计院发布的JSJT-121国家通用建筑标准设计-电气安装标准图集《电缆桥架安装》。
设计要求
1 桥梁系统路径平面布置
2.桥梁系统的相关剖面图。
3、桥梁系统所用的防腐材料及所需直通式、弯式、支(吊)支架等的规格、数量明细,以及必要的说明。 连接板、螺钉、保护帽由制造厂按上述要求准备。
4、有特殊要求的非标准技术说明或图表。