
电缆桥架的施工安装与计算,你了解多少?
大家好,我是龙哥。 在弱电工程项目中,与昂贵且高科技的软硬件相比,桥接器非常不起眼,但这并不降低桥接器在机房中的作用。 桥架是整个布线工程中不可缺少的一部分。 设计 选择过程应基于每个系统中电缆的类型和数量。 合理选择合适的桥梁至关重要。 本期我们做一个桥梁专题,来了解一下桥梁的施工、安装和计算。
文本:
1、桥梁的类型及选用

1、电缆桥架类型及品种的选择
1、当电缆网络需要屏蔽电气干扰或有防护不受外界影响的要求时(如有腐蚀性液体、可燃性粉尘等的环境),(FB)型槽式复合防腐屏蔽电缆桥架(带盖)应选)。
2、在强腐蚀环境下,应采用(F)型复合环氧树脂防腐阻燃电缆桥架。 支撑臂和支架也应采用相同的材料,以增加电缆桥架和附件的使用寿命。 在容易积尘并需要遮盖的环境或室外场所应安装罩盖。
3、除上述情况外,还可根据现场环境和技术要求选用托盘式、槽式、梯式、玻璃防腐阻燃电缆桥架或普通钢型电缆桥架。 在容易积尘并需要遮盖的环境或室外场所应安装罩盖。
4、穿越公共通道或室外路段时,该路段应在最底层台阶底部加垫板或使用托盘。 当大跨度跨越公共通道时,可根据用户要求增加桥梁的承载能力或选用行车架。
5、大跨度(>3m)宜采用组合桥(FB)。
6、复合环氧树脂桥(F)应在室外使用。

2、电缆桥架安装施工技术
1、电缆桥架安装流程:
定位布置→预埋铁件或膨胀螺栓→安装支架、吊车、支架→桥梁安装→保护接地安装

2.确定起始和结束位置
根据施工图确定起点到终点位置,沿图纸标定方向,找到水平、垂直和曲线链接,用粉色线袋或画线在墙壁、天花板、地板、梁上拉伸或拉伸线条沿桥方向的、板、柱等。 画线,等间隔画出支撑、吊架、支架的位置。
3、预埋铁件或膨胀螺栓
1、自行加工预埋铁件不应小于120mm×80mm×6mm,锚固圆钢直径不应小于10mm。
2、紧密配合土建结构施工,将预埋铁件紧贴模板放置,将锚固圆钢通过绑扎或焊接的方式固定在结构内的钢筋上; 混凝土模板拆除后,预埋的铁件将暴露在平面上。 将支架、吊架或支架焊接到其上以将其固定。
3、根据支架承受的载荷选择相应的膨胀螺栓和钻头; 螺栓埋设后,可用螺母和相应的垫圈将支架或吊架直接固定在金属膨胀螺栓上。
4、支吊架安装
1、支架、吊架所用钢材应平直,无明显扭曲。 切割后长度偏差应在3mm以内,切口处不应有卷边、毛刺;
2、钢支架、吊架应焊接牢固,无明显变形。 焊接前,支架及厚度超过4mm的铁件应进行坡口处理。 焊缝应均匀、平整。 焊缝长度应符合要求。 不应有裂缝、底切或气孔。 、凹痕、漏焊等缺陷;
3、支架、吊架应安装牢固,保证水平、垂直。 在有坡度的建筑物上安装支架、吊架时,应与建筑物的坡度、角度一致;
4、支架、吊架的规格一般不应小于扁钢30mm×3mm; 角钢25mm×25mm×3mm;
5、严禁使用电焊切割钢结构或轻钢龙骨的任何部位;
6、万能吊具应采用定型产品,并应有独立的吊装夹具或支撑系统。
7、固定支点之间的距离一般不应大于1.5~2m。 出入口接线盒、箱、柜、拐角、转弯及变形缝两端及T形缝三端500mm范围内应设置固定支撑点。
8、严禁使用木砖固定支架、吊架。
5、桥梁安装
1、电缆桥架水平敷设时,支撑跨度一般为1.5~3m。 电缆桥架垂直敷设时,固定点之间的距离不应大于2m。 当桥梁弯道的弯曲半径不大于300mm时,应在距弯曲段与直线段交界处300~600mm的直线段一侧设置支撑或吊架。 当弯曲半径大于300mm时,应在弯曲中间加支撑或吊架。 支吊架、桥架的安装必须考虑电缆敷设的弯曲半径,满足规范中的最小弯曲半径。 见下表。
电缆最小允许弯曲半径

2、门型角钢支架安装:阶梯式桥架沿墙体垂直敷设。 可采用门形角钢支架。 支架的固定应尽可能结合土建施工进行预埋。 如图12.3.1.5(2-1)所示,土建施工时也可预埋开角螺栓,用开角螺栓固定支架,如图12.3.1.5(2-2)所示。 也可以使用膨胀螺栓来固定。


图12.3.1.5.(2-1)角钢支架预埋安装

图12.3.1.5.(2-2)预埋地脚螺栓在钢支架上的安装
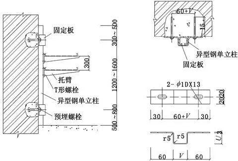
3、梯式角钢支架的安装:桥梁沿墙或柱水平安装时,支撑墙需安装在异形钢柱上,立柱应安装在梯式角钢上钢支架,使柱子与墙上的桥固定在同一直线上的支架(或托架)上。 制作见图、表12.3.1.5 (3) 底架与门架焊接时,焊角高度为5mm。

表12.3.1.5(3)
梯子角钢支架制作尺寸表(mm)
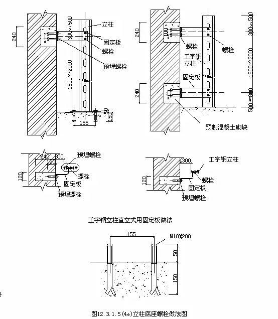
4、电缆桥架立柱侧墙安装:立柱是直接支撑支撑臂的构件,分为工字钢槽钢、角钢、异型钢立柱; 立柱可安装在墙上、立柱上,也可悬挂在梁板上。 。 铁件可预埋于混凝土中; 预制块可以用砖石建造; 也可以使用膨胀螺栓,但必须位于混凝土强度 C20 或砖强度 MU10 以上的砖石上。 方法可参见12.3.1。 5(4a、b、c、d、e、f)。



图12.3.1.5(4c)墙体侧墙异形钢柱安装方法之一



5、电缆桥架宜敷设在易燃易爆气体管道、热力管道下方。 当设计无要求时,距管道的最小净距应符合12.3.1.5(5)的规定。
表示12.3.1.5 (5)距管道的最小净距

6、支撑臂安装:
支撑臂是直接支撑托盘和梯架的刚性部件,单独固定。 支撑臂采用螺栓固定,可采用预埋螺栓,也可采用膨胀螺栓,也可采用夹紧方式,如图12.3.1.6(1)、(2)、(3)、(4) ),(5)。





如果你还不明白上面的过程,可以观看这个桥安装视频:
三、电缆桥架安装注意事项
一、施工要求
1、直线型钢制电缆桥架长度超过30m,铝合金或玻璃钢电缆桥架长度超过15m。 应安装伸缩缝。 补偿装置应跨过伸缩缝安装。 可以使用带有伸缩缝的桥梁。
2、桥架与支架之间的螺栓、桥架连接板上的螺栓均已拧紧。 螺母位于桥的外侧。 铝合金桥架与钢支架固定时,有相互绝缘措施,防止电偶腐蚀。 一般可采用石棉垫。
3、敷设在竖井内和跨越不同防火分区的电缆桥架应按设计要求定位,并有防火隔离措施。 敷设在电气竖井内的电缆桥架可用角钢固定,见图12.3.1.8。

4、电缆桥架穿越防火墙和防火楼板时,应采取防火隔离措施,防止火灾沿线蔓延; 防火隔离墙、防火隔离板应与土建施工配合预留开口,开口处应预埋护边角钢。 施工时根据层数和电缆敷设情况,采用L50×50×5角钢作为固定框架,固定柜与护边角钢焊接。 也可以先制作框架,然后在土建施工中砌筑或混凝土浇筑时安装。 在墙壁和木板上。
2、桥接地
桥梁的接地,当设计允许使用桥梁系统形成接地干线环路时,应满足下列要求:
金属走线架进出的金属走线槽及其支架必须可靠接地(PE)或接地(PEN),并符合以下规范:
1、金属桥架及其支架全长不少于2处与地(PE)或零(PEN)干线连接,使整个桥架成为一条电气路径。
2、非镀锌电缆桥架之间的连接两端应连接铜芯接地线。 接地线的最小允许截面积不应小于4mm2。
3、镀锌电缆桥架之间的连接板两端无需连接地线,但连接板两端应有不少于两个带锁紧螺母或锁紧垫圈的连接固定螺栓。

4.关于桥梁的一些计算
电桥的布线能力是我们在布线中使用最多的。 我们通常根据所有电缆的总面积来确定桥梁的尺寸。 计算方法前面已经介绍过。 很多朋友反映计算太慢,所以这里分享一个桥梁自动计算表格,填写电缆信息来确定桥梁型号。

2021年上半年数据链接:
弱电智能图文及视频讲解专用信息链接:
2020年下半年151G数据链路:
,
2019年上半年的文章。常用办公软件连接:
免费领取资料连接:
推荐好文:
一篇文章了解设计变更、项目签证、确认表、项目谈判、联系表和会签之间的区别,必读!
高档住宅区智能弱电系统设计方案
弱电人需要了解的100个网络基础知识
高档住宅区智能弱电系统新设计方案3
大型综合医院智能化系统初步设计报告